Borrar
Plaza homenaje a Eduardo Naranjo
ARQUITECTURA DE HOY - Una selección de Francisco Hipólito

Un homenaje al arte extremeño a pie de calle en Monesterio

Miguel Ángel Naranjo | Plaza homenaje a Eduardo Naranjo ·

En el cruce de las calles Cervantes y Libertad encontramos este proyecto dedicado a Eduardo Naranjo obra de su hijo Miguel Ángel

IRENE TORIBIO

Martes, 16 de abril 2024, 19:11

La plaza Eduardo Naranjo es una obra cuyo diseño fue confiado a una mente creativa dotada con el mismo genio artístico que el homenajeado, su padre. Así, el arquitecto Miguel Ángel Naranjo Naranjo, con una profunda comprensión de la visión y las ideas del artista, llevó a cabo el proyecto en estrecha colaboración con el pintor y el ayuntamiento de Monesterio. Su unión fue un concierto de talento y dedicación, dando vida a una creación que refleja la armonía entre la mente del diseñador, el corazón del artista y el espíritu de la comunidad.

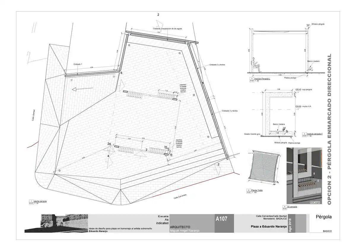
Se sitúa en la confluencia de las calles Cervantes, Libertad y Bóvedo. Siendo la calle Libertad (calle nueva) eje del presente proyecto, ya que actúa como una de las articulaciones principales del pueblo. Por dicho motivo, la plaza no se plantea solo como un espacio de esparcimiento o disfrute, sino como un fondo visual en el recorrido de bajada de dicha calle. Un escenario que actualmente presenta variopintos e irregulares testeros de viviendas, difíciles de camuflar visualmente. Por ello se generan una serie de soluciones que lo mitigan, y nos trasladan la atención a la parte nueva y expositiva de la plaza.

En el perímetro del espacio se divisan diversos paneles de hormigón con un acabado de fotograbado de la marca finlandesa Graphicconcrete, recurso novedoso en nuestro país, para el que se usaron áridos negros provenientes de Murcia y mortero blanco de Macael. Se han llevado a cabo una amplia variedad de pruebas meticulosas hasta alcanzar el efecto deseado. De esta forma el propio perímetro de la plaza se convierte en un elemento expositivo del artista, y con una técnica similar a la del grabado, en la que tanto ha destacado. Es el elemento visual potente y escultórico que define el propio espacio.

Planos del proyecto
Imagen principal - Planos del proyecto
Imagen secundaria 1 - Planos del proyecto
Imagen secundaria 2 - Planos del proyecto

A la izquierda un fragmento del grabado «Los emigrados» (1975), en clara referencia al pueblo que emigró en el pasado.

El muro más largo, y que acompaña naturalmente el inicio del recorrido de la plaza, dispone de un texto ejecutado con el mismo sistema de fotograbado, con reproducción de su rostro y otro con velos, proveniente de una de sus obras.

Para marcar los dos de los muros principales, acompañar su recorrido y crear reflejos y transparencias (a semejanza de lo que ocurre en las obras de Naranjo), se coloca una lámina de agua a lo largo de la base de ellos. Disponiendo, además, de dos caídas de agua, a los lados del muro frontal, relacionadas con la temática del grabado principal, «La separación de las aguas» (1983). En la parte superior de dichos paneles se plantea un jardín vertical, ya que la naturaleza es un conocido motivo muy presente en las obras del artista.

Además, se crea un elemento central de estancia y sombra que enmarca y focaliza al mismo tiempo la obra principal de la plaza. Realizado igualmente en hormigón blanco, dichos marcos incorporan sutiles bancos en madera, que permiten la contemplación de las obras.

En un acercamiento lateral y desde la avenida, dicho elemento invita a situarse en el eje focal y acercarse a la plaza.

Así mismo, se ha estudiado una iluminación adecuada, que por la noche crea un efecto escénico, con ciertos tonos en los muros, e iluminación funcional desde los elementos de marco.

Plaza homenaje a Eduardo Naranjo

Se trata de un proyecto sencillo, con alusiones a las obras del artista en su propia composición. Matérica, con naturaleza, agua, transparencias, distintos planos… Un rincón expositivo al aire libre donde pensar y relacionarse.

Una obra que, a pesar de su complejidad técnica, ha sido realizada casi en su totalidad por trabajadores de Monesterio, y su ilusión personal y el cariño a la figura del artista local Eduardo Naranjo se refleja en la fidelidad a la idea original.

Publicidad

Publicidad

Publicidad

Publicidad

Esta funcionalidad es exclusiva para suscriptores.

Reporta un error en esta noticia

* Campos obligatorios

hoy Un homenaje al arte extremeño a pie de calle en Monesterio

Un homenaje al arte extremeño a pie de calle en Monesterio